ΚΤΙΡΙΟ Β
Σύγχρονο πενταώροφο κτίριο κατοικιών με minimal αρχιτεκτονική μεγάλες βεράντες και άνετους εσωτερικούς χώρους.

ΚΤΙΡΙΟ Β
Το Κτίριο Β διαθέτει ευρύχωρες κατοικίες 82 τ.μ. 100 τ.μ. 145 τ.μ. 213 τ.μ. 230 τ.μ. και 275 τ.μ.
*Οι εικόνες είναι φωτορεαλιστικές απεικονίσεις και αποτελούν αισθητικές προσεγγίσεις των χώρων
Χαρακτηριστικά
Μεγάλες ενιαίες επιφάνειες & φυσικός φωτισμός
Λουτρά με σύγχρονο σχεδιασμό
Ευρύχωρο καθιστικό με πρόσβαση στη βεράντα
Λειτουργική και μοντέρνα κουζίνα
Ιδιωτική ζώνη υπνοδωματίων για μεγαλύτερη άνεση
Minimal αισθητική και καθαρές γραμμές σε όλους τους χώρους
Ο τρόπος που σας καθοδηγούμε
Στόχος μας είναι να σας παρέχουμε ξεκάθαρη και άμεση ενημέρωση σχετικά με τα διαθέσιμα διαμερίσματα, τον σχεδιασμό τους και τα τεχνικά τους χαρακτηριστικά.
ΔΙΑΜΕΡΙΣΜΑ 82 τ.μ. 1ου ΟΡΟΦΟΥ
Πληροφορίες
- ΕΠΙΦΑΝΕΙΑ ΔΙΑΜΕΡΙΣΜΑΤΟΣ: 82.43 τμ
- ΟΡΟΦΟΣ: 1ος
- ΕΠΙΠΕΔΑ: 1
- ΥΠΝΟΔΩΜΑΤΙΑ: 1
- ΛΟΥΤΡΑ: 1
- WC: 1
- ΑΠΟΘΗΚΗ ΥΠΟΓΕΙΟΥ: 1
- ΚΛΕΙΣΤΕΣ ΘΕΣΕΙΣ ΣΤΑΘΜΕΥΣΗΣ: 1
Παροχές
- ΚΤΙΡΙΟ ΕΝΕΡΓΕΙΑΚΗΣ ΚΛΑΣΗΣ Α+
- ΚΟΥΦΩΜΑΤΑ ΑΛΟΥΜΙΝΙΟΥ ΘΕΡΜΟΔΙΑΚΟΠΤΟΜΕΝΑ
- ΞΥΛΙΝΑ ΔΑΠΕΔΑ ΥΨΗΛΗΣ ΠΟΙΟΤΗΤΑΣ
- ΕΝΔΟΔΑΠΕΔΙΑ ΘΕΡΜΑΝΣΗ
- ΚΛΙΜΑΤΙΣΜΟΣ
- ΑΝΕΛΚΥΣΤΗΡΑΣ
- ΠΟΡΤΑ ΑΣΦΑΛΕΙΑΣ
- SMART HOME
- ΣΥΣΤΗΜΑ ΣΥΝΑΓΕΡΜΟΥ
- ΤΖΑΚΙ ΒΙΟΑΙΘΑΝΟΛΗΣ
ΔΙΑΜΕΡΙΣΜΑ 100 τ.μ. 1ου ΟΡΟΦΟΥ
Πληροφορίες
- ΕΠΙΦΑΝΕΙΑ ΔΙΑΜΕΡΙΣΜΑΤΟΣ: 99.32 τμ
- ΟΡΟΦΟΣ: 1ος
- ΕΠΙΠΕΔΑ: 1
- ΥΠΝΟΔΩΜΑΤΙΑ: 2
- ΛΟΥΤΡΑ: 1
- WC: 1
- ΑΠΟΘΗΚΗ ΥΠΟΓΕΙΟΥ: 1
- ΚΛΕΙΣΤΕΣ ΘΕΣΕΙΣ ΣΤΑΘΜΕΥΣΗΣ: 1
Παροχές
- ΚΤΙΡΙΟ ΕΝΕΡΓΕΙΑΚΗΣ ΚΛΑΣΗΣ Α+
- ΚΟΥΦΩΜΑΤΑ ΑΛΟΥΜΙΝΙΟΥ ΘΕΡΜΟΔΙΑΚΟΠΤΟΜΕΝΑ
- ΞΥΛΙΝΑ ΔΑΠΕΔΑ ΥΨΗΛΗΣ ΠΟΙΟΤΗΤΑΣ
- ΕΝΔΟΔΑΠΕΔΙΑ ΘΕΡΜΑΝΣΗ
- ΚΛΙΜΑΤΙΣΜΟΣ
- ΑΝΕΛΚΥΣΤΗΡΑΣ
- ΠΟΡΤΑ ΑΣΦΑΛΕΙΑΣ
- SMART HOME
- ΣΥΣΤΗΜΑ ΣΥΝΑΓΕΡΜΟΥ
- ΤΖΑΚΙ ΒΙΟΑΙΘΑΝΟΛΗΣ
ΔΙΑΜΕΡΙΣΜΑ 82 τ.μ. 2ου ΟΡΟΦΟΥ
Πληροφορίες
- ΕΠΙΦΑΝΕΙΑ ΔΙΑΜΕΡΙΣΜΑΤΟΣ: 82.43 τμ
- ΟΡΟΦΟΣ: 2ος
- ΕΠΙΠΕΔΑ: 1
- ΥΠΝΟΔΩΜΑΤΙΑ: 1
- ΛΟΥΤΡΑ: 1
- WC: 1
- ΑΠΟΘΗΚΗ ΥΠΟΓΕΙΟΥ: 1
- ΚΛΕΙΣΤΕΣ ΘΕΣΕΙΣ ΣΤΑΘΜΕΥΣΗΣ: 1
Παροχές
- ΚΤΙΡΙΟ ΕΝΕΡΓΕΙΑΚΗΣ ΚΛΑΣΗΣ Α+
- ROOF GARDEN
- MINI POOL
- ΠΕΡΓΚΟΛΑ
- ΔΥΝΑΤΟΤΗΤΑ ΓΙΑ ΕΞΩΤΕΡΙΚΗ ΚΟΥΖΙΝΑ BBQ
- ΚΟΥΦΩΜΑΤΑ ΑΛΟΥΜΙΝΙΟΥ ΘΕΡΜΟΔΙΑΚΟΠΤΟΜΕΝΑ
- ΞΥΛΙΝΑ ΔΑΠΕΔΑ ΥΨΗΛΗΣ ΠΟΙΟΤΗΤΑΣ
- ΕΝΔΟΔΑΠΕΔΙΑ ΘΕΡΜΑΝΣΗ
- ΚΛΙΜΑΤΙΣΜΟΣ
- ΑΝΕΛΚΥΣΤΗΡΑΣ
- ΠΟΡΤΑ ΑΣΦΑΛΕΙΑΣ
- SMART HOME
- ΣΥΣΤΗΜΑ ΣΥΝΑΓΕΡΜΟΥ
- ΤΖΑΚΙ ΒΙΟΑΙΘΑΝΟΛΗΣ
ΔΙΑΜΕΡΙΣΜΑ 100 τ.μ. 2ου ΟΡΟΦΟΥ
Πληροφορίες
- ΕΠΙΦΑΝΕΙΑ ΔΙΑΜΕΡΙΣΜΑΤΟΣ: 99.32 τμ
- ΟΡΟΦΟΣ: 2ος
- ΕΠΙΠΕΔΑ: 1
- ΥΠΝΟΔΩΜΑΤΙΑ: 2
- ΛΟΥΤΡΑ: 1
- WC: 1
- ΑΠΟΘΗΚΗ ΥΠΟΓΕΙΟΥ: 1
- ΚΛΕΙΣΤΕΣ ΘΕΣΕΙΣ ΣΤΑΘΜΕΥΣΗΣ: 1
Παροχές
- ΚΤΙΡΙΟ ΕΝΕΡΓΕΙΑΚΗΣ ΚΛΑΣΗΣ Α+
- ΚΟΥΦΩΜΑΤΑ ΑΛΟΥΜΙΝΙΟΥ ΘΕΡΜΟΔΙΑΚΟΠΤΟΜΕΝΑ
- ΞΥΛΙΝΑ ΔΑΠΕΔΑ ΥΨΗΛΗΣ ΠΟΙΟΤΗΤΑΣ
- ΕΝΔΟΔΑΠΕΔΙΑ ΘΕΡΜΑΝΣΗ
- ΚΛΙΜΑΤΙΣΜΟΣ
- ΑΝΕΛΚΥΣΤΗΡΑΣ
- ΠΟΡΤΑ ΑΣΦΑΛΕΙΑΣ
- SMART HOME
- ΣΥΣΤΗΜΑ ΣΥΝΑΓΕΡΜΟΥ
- ΤΖΑΚΙ ΒΙΟΑΙΘΑΝΟΛΗΣ
ΔΙΑΜΕΡΙΣΜΑ 145τ.μ. 3ου ΟΡΟΦΟΥ
Πληροφορίες
- ΕΠΙΦΑΝΕΙΑ ΔΙΑΜΕΡΙΣΜΑΤΟΣ: 145.05 τμ
- ΟΡΟΦΟΣ: 3ος
- ΕΠΙΠΕΔΑ: 1
- ΥΠΝΟΔΩΜΑΤΙΑ: 3
- ΛΟΥΤΡΑ: 2
- WC: 1
- ΑΠΟΘΗΚΗ ΥΠΟΓΕΙΟΥ: 1
- ΚΛΕΙΣΤΕΣ ΘΕΣΕΙΣ ΣΤΑΘΜΕΥΣΗΣ: 2
Παροχές
- ΚΤΙΡΙΟ ΕΝΕΡΓΕΙΑΚΗΣ ΚΛΑΣΗΣ Α+
- ΚΟΥΦΩΜΑΤΑ ΑΛΟΥΜΙΝΙΟΥ ΘΕΡΜΟΔΙΑΚΟΠΤΟΜΕΝΑ
- ΞΥΛΙΝΑ ΔΑΠΕΔΑ ΥΨΗΛΗΣ ΠΟΙΟΤΗΤΑΣ
- ΕΝΔΟΔΑΠΕΔΙΑ ΘΕΡΜΑΝΣΗ
- ΚΛΙΜΑΤΙΣΜΟΣ
- ΑΝΕΛΚΥΣΤΗΡΑΣ
- ΠΟΡΤΑ ΑΣΦΑΛΕΙΑΣ
- SMART HOME
- ΣΥΣΤΗΜΑ ΣΥΝΑΓΕΡΜΟΥ
- ΤΖΑΚΙ ΒΙΟΑΙΘΑΝΟΛΗΣ
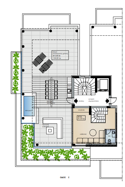
ΔΙΑΜΕΡΙΣΜΑ 181τ.μ. 3ου ΟΡΟΦΟΥ + 32 τ.μ. ΔΩΜΑΤΟΣ
Πληροφορίες
- ΕΠΙΦΑΝΕΙΑ ΔΙΑΜΕΡΙΣΜΑΤΟΣ: 212.65 τμ
- ΕΠΙΦΑΝΕΙΑ ΑΝΟΙΧΤΟΥ ΧΩΡΟΥ ΑΠΟΚΛΕΙΣΤΙΚΗΣ ΧΡΗΣΗΣ ΔΩΜΑΤΟΣ: 124.32 τμ
- ΟΡΟΦΟΣ: 3ος + δώμα
- ΕΠΙΠΕΔΑ: 2
- ΥΠΝΟΔΩΜΑΤΙΑ: 3
- ΛΟΥΤΡΑ: 2
- WC: 2
- ΑΠΟΘΗΚΗ ΥΠΟΓΕΙΟΥ: 1
- ΚΛΕΙΣΤΕΣ ΘΕΣΕΙΣ ΣΤΑΘΜΕΥΣΗΣ: 2
Παροχές
- ΚΤΙΡΙΟ ΕΝΕΡΓΕΙΑΚΗΣ ΚΛΑΣΗΣ Α+
- ΚΟΥΦΩΜΑΤΑ ΑΛΟΥΜΙΝΙΟΥ ΘΕΡΜΟΔΙΑΚΟΠΤΟΜΕΝΑ
- ΞΥΛΙΝΑ ΔΑΠΕΔΑ ΥΨΗΛΗΣ ΠΟΙΟΤΗΤΑΣ
- ΕΝΔΟΔΑΠΕΔΙΑ ΘΕΡΜΑΝΣΗ
- ΚΛΙΜΑΤΙΣΜΟΣ
- ΑΝΕΛΚΥΣΤΗΡΑΣ
- ΠΟΡΤΑ ΑΣΦΑΛΕΙΑΣ
- SMART HOME
- ΣΥΣΤΗΜΑ ΣΥΝΑΓΕΡΜΟΥ
- ΤΖΑΚΙ ΒΙΟΑΙΘΑΝΟΛΗΣ
Μαιζονέτα 230 τ.μ. 1ου - 2ου ΟΡΟΦΟΥ
Πληροφορίες
- ΕΠΙΦΑΝΕΙΑ ΔΙΑΜΕΡΙΣΜΑΤΟΣ:230.13 τμ
- ΟΡΟΦΟΣ: 1ος+2ος
- ΕΠΙΠΕΔΑ: 2
- ΚΑΘΙΣΤΙΚΑ: 2
- ΥΠΝΟΔΩΜΑΤΙΑ: 4
- ΛΟΥΤΡΑ: 3
- WC: 1
- ΑΠΟΘΗΚΗ ΥΠΟΓΕΙΟΥ: 1
- ΚΛΕΙΣΤΕΣ ΘΕΣΕΙΣ ΣΤΑΘΜΕΥΣΗΣ: 2
Παροχές
- ΚΤΙΡΙΟ ΕΝΕΡΓΕΙΑΚΗΣ ΚΛΑΣΗΣ Α+
- ΚΟΥΦΩΜΑΤΑ ΑΛΟΥΜΙΝΙΟΥ ΘΕΡΜΟΔΙΑΚΟΠΤΟΜΕΝΑ
- ΞΥΛΙΝΑ ΔΑΠΕΔΑ ΥΨΗΛΗΣ ΠΟΙΟΤΗΤΑΣ
- ΕΝΔΟΔΑΠΕΔΙΑ ΘΕΡΜΑΝΣΗ
- ΚΛΙΜΑΤΙΣΜΟΣ
- ΑΝΕΛΚΥΣΤΗΡΑΣ
- ΠΟΡΤΑ ΑΣΦΑΛΕΙΑΣ
- SMART HOME
- ΣΥΣΤΗΜΑ ΣΥΝΑΓΕΡΜΟΥ
- ΤΖΑΚΙ ΒΙΟΑΙΘΑΝΟΛΗΣ
Μαιζονέτα 275 τ.μ. ΙΣΟΓΕΙΟΥ - ΠΑΤΑΡΙΟΥ
Πληροφορίες
- ΕΠΙΦΑΝΕΙΑ ΔΙΑΜΕΡΙΣΜΑΤΟΣ: 274.97 τμ
- ΕΠΙΦΑΝΕΙΑ ΥΠΟΓΕΙΟΥ: 54.06 τμ
- ΟΡΟΦΟΣ: ΥΠΟΓΕΙΟ – ΙΣΟΓΕΙΟ - ΠΑΤΑΡΙ
- ΕΠΙΠΕΔΑ: 3
- ΥΠΝΟΔΩΜΑΤΙΑ: 4
- ΛΟΥΤΡΑ: 4
- WC: 1
- ΠΙΣΙΝΑ: 24.00 τμ
- ΚΛΕΙΣΤΕΣ ΘΕΣΕΙΣ ΣΤΑΘΜΕΥΣΗΣ: 2
Παροχές
- ΚΤΙΡΙΟ ΕΝΕΡΓΕΙΑΚΗΣ ΚΛΑΣΗΣ Α+
- ΚΟΥΦΩΜΑΤΑ ΑΛΟΥΜΙΝΙΟΥ ΘΕΡΜΟΔΙΑΚΟΠΤΟΜΕΝΑ
- ΞΥΛΙΝΑ ΔΑΠΕΔΑ ΥΨΗΛΗΣ ΠΟΙΟΤΗΤΑΣ
- ΕΝΔΟΔΑΠΕΔΙΑ ΘΕΡΜΑΝΣΗ
- ΚΛΙΜΑΤΙΣΜΟΣ
- ΑΝΕΛΚΥΣΤΗΡΑΣ
- ΠΟΡΤΑ ΑΣΦΑΛΕΙΑΣ
- SMART HOME
- ΣΥΣΤΗΜΑ ΣΥΝΑΓΕΡΜΟΥ
- ΤΖΑΚΙ ΒΙΟΑΙΘΑΝΟΛΗΣ
- ΠΙΣΙΝΑ 24 τ.μ.











